GB/T 23458-2009标准斜坡法测量仪
| 品牌:gabbrielli | 型号:GT2504 | 加工定制:否 | ||||
| 测量范围:GB/T 23458-2009 | 测量精度:见详情 |
GB/ T 23458-2009《广场用陶瓷砖》中采用了斜坡法,而这种也是国际上较多采用的典型试验方法,与欧美的试验方法高度一致。斜坡法采用了 DIN 51097、DIN 51130、AS 4586 和 SS 485:2011 标准,试验方法和分级方法都保持一致。
湿态赤脚斜坡试验方法,由人赤脚在湿态的斜坡上行走以确定临界角度。试验采用11.5°、 8 18.5°和 23.9°的三种临界角的标准板进行标定。

穿鞋斜坡试验方法,由人穿着标准鞋在抹油的斜坡上行走以确定临界角度,试验采用8.7°、17.3°和 27.3°的三种临界角的标准板进行标定。

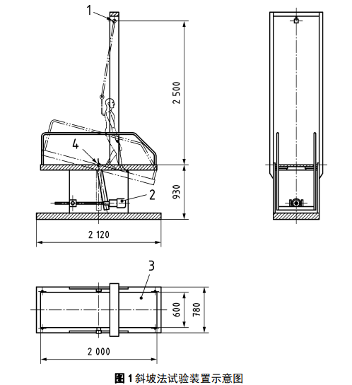
斜坡法测量仪
本仪器根据DIN 51097 和 DIN 51130制作而成,用于测定动态临界角。器由涂漆钢结构和不锈钢倾斜平台组成,平台用于支撑*大尺寸为 60×120 厘米的测试板。操作人员系好安全带,在平台上来回走动,平台以每秒 1° 的速度逐渐倾斜。当平台达到设定的滑动角度时,操作人员停止移动。在设定角度附近,以 0.5° 的步长重复多次倾斜测试,以确定临界角的精确值。

技术规格
• 机电执行器驱动倾斜运动
• 平台宽度 600 毫米,长度 2000 毫米
• 悬挂式按钮面板,带 3 个上下启动水验证角度
• 倾角仪,精度 ± 0.2°
• 连续坡度运动
• 平台可执行角度 0 至 45°
• 行走过程中平台刚度不超过 ± 0.5°
• 节拍器,144 次/分钟
• 可调方向喷嘴
• 可调流量计,6 ± 1 升/分钟
• 操作员安全工具:两侧护栏、绳索、安全带
• 水溶液收集箱
• 控制箱
• 触摸屏界面
关于我们
公司生产激光光束分析仪、IP防触电安规防护等级试验指、试验机、灯头量规通止规、插头插座量规、插座保护门、试验指针销、球压测试仪、弹簧冲击器、冷冻负载试验包、土壤水份传感器等等,还代理以色列OPHIR、德国WAZAU、德国GTE、德国FEMTO、英国MUNRO、美国RSR、美国REGAN等进口品牌陶瓷砖/地板/道路摩擦系数测试仪、防滑检测仪、激光功率计/能量计、电流/电压/锁相放大器/光电接收器、试验仪器等等产品。



